glaskoning-glas-balustrade-qrailing

Hardglazen klepramen

Maximale afmetingen klepraam: 

  • Hoogte (mm): 720mm
  • Breedte (mm): 1500mm

KLIK HIER VOOR ONZE ACTUELE LEVERTIJDEN.

Meer informatie over dit product onder de configurator klik 'lees meer' ↓

Lees meer
U heeft javascript uitgeschakeld, hierdoor kunt u geen bestelling plaatsen. Schakel javascript in om verder te kunnen gaan.
Stel uw product samen
WELK TYPE GLAS WILT U BESTELLEN?

Naast standaard glas bieden wij Klepraam ook aan met Satijn glas. Satijn glas is glas met een ruwe achterzijde, hierdoor heeft het glas een matte afwerking. Het laat nog wel licht door maar geeft verder een vertekend beeld. 

Geef hier de maat van uw glas op
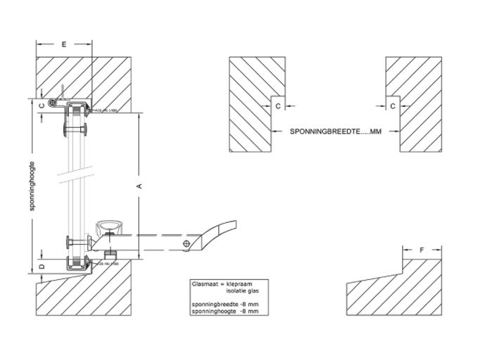
INMETEN: Meet de ruimte tussen de sponningen en trek van zowel de hoogte als de breedte -8 mm af.
mm
mm
Kleur kunststof rand voor isolatieglas
Kies hier de kleur van de kunststof omranding bij een klepraam met isolatieglas. Mocht u geen keuze maken dan zullen wij standaard WIT aanhouden.
Kies hier uw beslag met of zonder slot
Hoeveel stuks wilt u bestellen?

Het bestellen van hardglazen klepramen is erg eenvoudig bij Glaskoning. Selecteer de juiste variant, vul de afmetingen in, kies het aantal stuks, betaal op de website en wij zorgen ervoor dat de bestelling aan huis wordt afgeleverd. Wilt u meer informatie over de levering van onze hardglazen klepramen? Neem dan contact op met Glaskoning via info@glaskoning.nl, bel ons via het nummer +31 318 76 39 00 of neem een kijkje op deze pagina.

Hardglazen klepramen zijn naar buiten draaiende ramen die toepasbaar zijn in elk type kozijn: zowel in een houten kozijn, een kunststoffen kozijn of een aluminium kozijn. Ook zijn ze beschikbaar voor zowel nieuwbouw- als renovatieprojecten.

Dit type raam heeft heel wat voordelen. Zo hebben ze een groot lichtdoorlatend oppervlak waardoor u een ruimer gevoel krijgt in de kamer. Daarnaast is het eenvoudig te monteren, aangezien het hang- en sluitwerk volledig is voor gemonteerd. De scharnieren worden aan de bovenzijde van de hardglazen klepramen bevestigd. Ook kunnen ze rechtstreeks in het kozijn worden geplaatst en vereisen ze weinig tot geen onderhoud.

U-waarden:

Enkelglas klepraam (W/(m².K)) 5,7
Isolatieglas klepraam: (W/(m².K)) 3.0
HR++ isolatieglas klepraam: (W/(m².K)): 1.2
HR+++ tripleglas klepraam: (W/(m².K)): 0.9

Bij Glaskoning worden hardglazen klepramen standaard op maat geproduceerd. Geef de maten van uw kozijn op in millimeters. Inmeten doet u door de ruimte tussen de sponningen te meten en hier van zowel de hoogte als de breedte 8 millimeter af te trekken. Heeft u hulp nodig bij het inmeten? Neem dan contact met ons op of bekijk de inmeetinstructie. 

Gehard glas voor extra veiligheid

Bij Glaskoning zijn alle soorten glazen klepramen van gehard glas gemaakt. Hier is voor gekozen, omdat gehard glas veiligheidsglas is. Wanneer het breekt zal het in minuscule stukjes uiteen vallen. Kans op letsel is door deze eigenschap beperkt. Daarnaast is gehard glas vele malen sterker. Dit is extra van belang, omdat klepramen gekanteld worden. Het is daarom belangrijk dat ze tegen een stootje kunnen.

Bij Glaskoning heeft u voor hardglazen klepramen keuze uit verschillende soorten glas: isolatieglas, HR++ glas, HR+++ tripleglas of enkel glas. Ook kunt u kiezen voor raamuitzetters met of zonder slot. Alle soorten zijn compleet voorgemonteerd met hang- en sluitwerk. Zo heeft u altijd een variant die bij uw huis past.

Isolatieglas is glas met een isolerende werking. Wanneer de klepramen aan de buitenzijde van een huis of kantoor worden geplaatst is isolatie wenselijk. HR++ en HR+++ tripleglas is isolatieglas dat gevuld is met argongas. Daarnaast bevat het een onzichtbare metaalcoating die zonlicht doorlaat, maar warmte terugkaatst. 

Hardglazen klepramen van enkel glas worden plat poly geslepen. Dit houdt in dat de randen van het glas schuin worden afgeslepen, zodat deze niet langer scherp aanvoelen. Als u kiest voor (HR++) isolatieglas worden de klepramen omlijst met een kunststof rand. U kunt kiezen uit een witte of zwarte omranding.

U kunt kiezen voor een raamuitzetter met of zonder slot. Een raamuitzetter is bedoeld om uw klepraam open te kunnen doen en het raam in een bepaalde stand te houden. De raamuitzetter heeft verschillende standen. Zo kunt u kiezen om uw raam op een kier te zetten of ver op te doen. Naast het openhouden van het klepraam biedt de raamuitzetter veiligheid. Het raam kan niet verder open dan de positie waar u de raamuitzetter op hebt ingesteld. Dit biedt weerstand tegen inbraak. De optie inclusief slot is het meest veilig.

Er zijn een aantal zaken waar u op moet letten als u een hardglazen klepraam koopt. Het is belangrijk dat het raam gemaakt is van materiaal van hoge kwaliteit en goed geïsoleerd is, zodat er geen ongewenste tocht binnenkomt. Het tweede waar u aan moet denken is de grootte van het raam. U wilt er zeker van zijn dat het raam past in de ruimte die u ervoor heeft. Tenslotte, zorg ervoor dat het raam gemakkelijk te openen en te sluiten is. Zijn er bepaalde zaken onduidelijk? Aarzel dan niet om contact op te nemen met een van onze glasexperts.